探花网站免费观看水力控制阀

探花网站免费观看压差旁通阀


800X-10/16P 探花网站免费观看压差旁通阀是一种用于空调系统供/回水之间以平衡压差的阀门。该阀门可提高系统的利用率,保持压差的互定直,并可较大限度地降低系统的噪音,以及过大压差对设备造成的损坏。

&nbsp;<a href="#">探花网站免费观看旁通阀</a>  <a href="#">800X旁通阀</a> <a href="#">压差旁通阀</a>

800X-10/16P 探花网站免费观看压差旁通阀是一种用于空调系统供/回水之间以平衡压差的阀门。该阀门可提高系统的利用率,保持压差的互定直,并可较大限度地降低系统的噪音,以及过大压差对设备造成的损坏。800X压差旁通平衡阀优越于其他平衡阀的地方在于它没有执行机构,完全介质自身的压力差来达到平衡系统的功能,节约能源及安装空间,是一种智能型阀门。

800X 探花网站免费观看压差旁通阀特点;

800X-10/16P 探花网站免费观看压差旁通阀又叫作压差旁通平衡阀,它是一种用于空调系统供/回水之间以平衡压差的阀门。该阀门可提高系统的利用率,保持压差的互定直,并可较大限度地降低系统的噪音,以及过大压差对设备造成的损坏。

800X探花网站免费观看压差旁通阀安装注意事项;


1、装卸:800X压差旁通平衡阀应小心装卸,建议用软的绳索起吊,以免损坏阀及配管,保护涂装层,阀门应小心地放落地下,不能直接落于地面。
2、安装前的检查:在装卸到目的地后,首先按ACOL提供的说明书上的内容检查确认,配管是否正确,连接是否可靠,运输过程中有无对阀门进行损坏,各种零件是否完整。
3、旁通阀安装前应清理管道中的杂质,检查相应的法兰应与阀门的法兰的压力等级,公称通径相一致,以保持管路的畅通。
4、在压差旁通阀前后,应安装两只闸阀,以检测及维修时使用。
5、压差导向阀之感应压力的管道应直接接在供水及回水管道上,以达到能准确反应供回管之间的压差,为安装使用的方便,可在感应管道上装上小球阀。
6、压差向导阀上两个接压口,上面一个口接到回水管道上,下面一个口接到供水管道上。


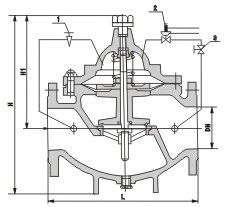
800X探花网站免费观看压差旁通阀结构及连接尺寸参数;

公称通径 (mm)尺    寸(mm)
LH1H
20150126520
25160126520
32180126520
40200160610
 50203160610
 65216180625
 80241200642
 100292270750
 125330310808
 150356320864
 2004953701135
 2506224301185
 3006984801325
 3507875251385
 4009145801445
 4509786351445

 

相关产品

购买国产探花在线观看阀门合作流程

免费咨询

提供选型

签订合同

安排订货

物流配送

保修一年

网站地图